Białe Błota, Ciele

Dom na sprzedaż

Opis nieruchomości


Do sprzedaży

Bardzo ładny i wygodny dom jednorodzinny - parterowy 4 pokojowy ! o powierzchni użytkowej ok 97m2
(powierzchnia całkowita( 159m2)

Dom według projektu "Dom przy Przyjemnej 18 bis"

Miejsce położenia domu Ciele gmina Białe Błota.
Dom usytuowany jest w prestiżowej dzielnicy Ciela w pobliżu szkoły 4 Pory Roku bardzo blisko lasu, drogi asfaltowej oraz ścieżki rowerowej.

Działka o powierzchni 599m2, przy której znajduje się :

-wodociąg
-prąd 
-gaz
-łącze telekomunikacyjne

Dom - wśród nowo wybudowanych domów jednorodzinnych.
Działka ogrodzona i położona przy oświetlonej drodze !

Bardzo blisko przystanki autobusowe, szkoła, przedszkole, sklep DINO oraz bardzo dobry dojazd do centrum Bydgoszczy drogą asfaltową.


                          RYNEK PIERWOTNY

Stan deweloperski z możliwością oddania pod tzw."klucz"


Na obecnym etapie możliwość dokonania uzgodnień dotyczących położeniami:

-ścian działowych, 
-położenia instalacji elektrycznej 
-sposobu ogrzewania (pompa.gaz)
-czy innych elementów domu.


Bardzo cicha i spokojna okolica.


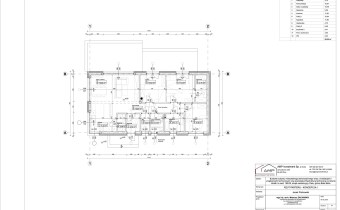
Dom posiada bardzo ciekawie rozplanowane pokoje, które jak na powierzchnie domu są bardzo duże

- korytarz          10,23 m2
- wiatrołap          3,08 m2
- łazienka            9,29m2
- kuchnia           14,74m2
- pokój dzienny  26,96 m2
- pokój              10,02m2
- pokój              10,02 m2
- sypialnia         12,72 m2
- garaż              17,50 m2
- kotłownia        11,56 m2

Jeśli cenisz sobie przestrzeń, ciszę, spokój i wygodę, to ta propozycja jest dla Ciebie.
 
Gorąco polecam i zapraszam do kontaktu oraz na prezentację.

Oferujemy bezpłatna pomoc przy udzielenia kredytu hipotecznego na zakup nieruchomości.
Pomoc w obsłudze notarialnej

Nota prawna

Opis oferty zawarty na stronie internetowej sporządzany jest na podstawie oględzin nieruchomości oraz informacji uzyskanych od właściciela, może podlegać aktualizacji i nie stanowi oferty określonej w art. 66 i następnych K.C.

Szczegóły oferty

Symbol oferty OLM-DS-6043
Powierzchnia 159,93 m²
Powierzchnia użytkowa 97,06 m²
Powierzchnia działki 599 m²
Powierzchnia balkonów/tarasów 50,00 m²
Liczba pokoi 4
Rodzaj domu jednorodzinny
Technologia budowlana bloczki, gazobeton
Wymiary działki 21x27 m
Garaż w budynku
Okna PCV 3 szyby, ciepły montaż
Liczba tarasów 1
Zagosp. działki niezagospodarowana
Ukształtowanie działki płaska
Kształt działki prostokąt
Pokrycie dachu dachówka
Stan budynku do wykończenia
Ogrodzenie działki ogrodzona

Pomieszczenia

Powierzchnia pokoi 59,72 m2
Powierzchnia kuchni 14,74 m2
Liczba łazienek 1
Powierzchnia łazienki 9,29 m2
Liczba WC 1
Powierzchnia WC 9,29 m2
Liczba przedpokoi 1
Powierzchnia przedpokoi 10,29 m2

Lokalizacja

Kalkulator kredytowy

PLN
%
Wysokość raty

Kalkulator kosztów

PLN
PLN
PLN
PLN
PLN
PLN
%
PLN
Podatek od czynności cywilno-prawnych
Taksa notarialna (opłata notarialna)
VAT od taksy notarialnej (opłaty notarialnej)
Wniosek do WKW
VAT od wniosku do WKW
Prowizja agencji nieruchomości
VAT od prowizji agencji nieruchomości
Wypisy aktu notarialnego - około
RAZEM (cena + opłaty)

Uwaga: mogą wystąpić dodatkowe opłaty za założenie księgi wieczystej oraz ustanowienie hipoteki.

Podobne oferty

dom na sprzedaż - Białe Błota, Ciele

dom na sprzedaż

Białe Błota, Ciele
4 pokoje 110,00 m2 5 909,09 zł/m2
oferta na wyłączność
dom na sprzedaż - Białe Błota, Ciele

dom na sprzedaż

Białe Błota, Ciele
4 pokoje 120,54 m2 6 620,21 zł/m2

Napisz do nas

Proszę wypełnić to pole
Proszę wypełnić to pole
Proszę wypełnić to pole
Proszę wypełnić to pole
Trwa wysyłanie...

Ta strona wykorzystuje pliki cookies w celach statystycznych oraz w celu dostosowania naszych serwisów do indywidualnych potrzeb klientów. Zmiany ustawień dotyczących plików cookie można dokonać w dowolnej chwili modyfikując ustawienia przeglądarki. Korzystanie z tej strony bez zmian ustawień dotyczących cookies oznacza, że będą one zapisane w pamięci urządzenia.

rozumiem